Skip links

coffee cipher

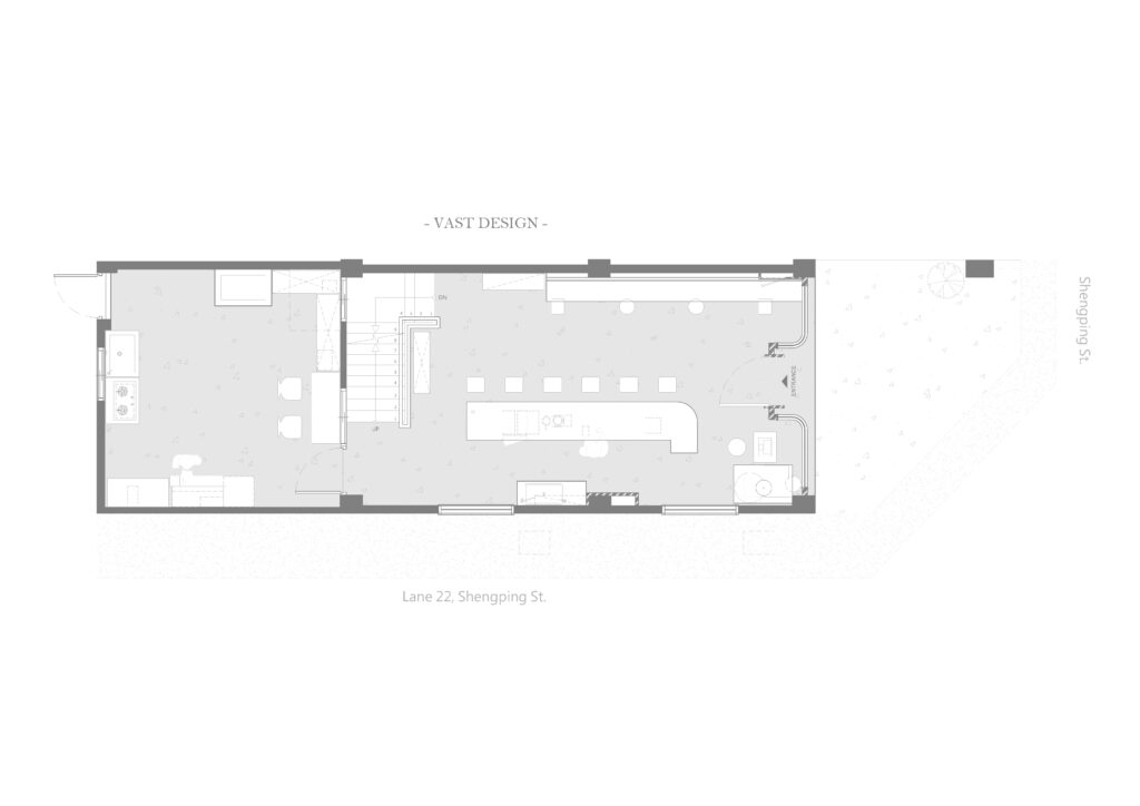
PROJECT:coffee cipher
TYPE:Commercial space
LOCATION:Taichung
DESIGNER:李易桓、鄭伊君

© 2021 阜室設計 .Design by SNOTKY

error: 阜室設計版權所有!